Виготовляємо блочно-модульні котельні на твердому паливі на базі ефективних та надійних котлів провідних виробників цієї галузі.
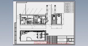
Котельні являють собою технологічний комплекс максимальної заводської готовності, в якому змонтований котел опалювальний водогрійний, допоміжне обладнання, система ХВО, насосне обладнання, системи КВП і А, електросилове обладнання.
Технічні рішення, прийняті в проекті, відповідають вимогам екологічних, санітарно – гігієнічних, протипожежних та інших норм, що діють на території України і забезпечують безпечну для здоров’я людей експлуатацію об’єкта.
БМК – 100 . Котли 2х 46 кВт.
БМК – 200. Котли 2х 90 кВт.
БМК – 300. Котли 2х 150 кВт.
БМК – 400. Котли 2х 200 кВт.




